Villa Coraffan, Pool Deck
Villa Coraffan, Ocean nearby

Villa Coraffan

Canggu
5 Bedrooms
10 Guests Maximum
$850 - $999
  • Surrounded by Rice Fields
  • Infinity Pool
  • Open Living Room With Bar
  • Close to the famous surfing spot Echo Beach
  • Full time staff & chef

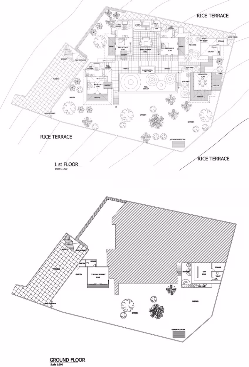
Villa Coraffan in Canggu is set around a 5-by-17-meter infinity pool. Each of Villa Coraffan's 5 bedrooms has a spectacular view. White Palimanan stone walls and rich Merbau wooden floors were chosen for each room to fuse the dignified tranquility of a temple with earthy warmth. Villa Coraffan has an open-air living room equipped with a bar. Other common areas include a detached viewing platform ideal for morning meditation or yoga and a detached dining area surrounded by balconies. Coraffan's air-conditioned TV room has a full bathroom and can be used as a fifth bedroom. Coraffan also has a fully appointed kitchen with staff quarters and a parking area with a security post.

The villa has a full-time staff consisting of 7 staff members.The Villa's supervisor Ms. Wayan Weti, the chef Mr. Putu, the gardener/housekeeper Mr. Ketut, the housekeepers Ms. Wiwin and Mr. Kadek and two security guards Mr. Nyoman Sudira and Nyoman Windu). Coraffan can arrange for a babysitter if needed. Our housekeepers are available to service the bedroom suites each morning and late afternoon. Most of the staff speak at least a basic level of English and have previous experience at 5-star hotels and villas. The staff generally keep regular working hours with at least two members present at any given time, though we can adjust schedules in accordance with our guests' needs. Coraffan's chef, Mr.Putu had prepared meals in some of Bali's best-known western restaurants and is also adept at Asian cuisines.

Master bedroom

The master bedroom suite features a wraparound balcony as well as a crow's nest terrace offering a glimpse of the Indian Ocean -- the perfect place to sip your morning coffee. The suite also includes a partially open garden-style bathroom and a TV nook. The room can be cooled with either air-conditioning or a ceiling fan.

Bedroom 2

The second bedroom features a spacious, partially open bathroom and a balcony overlooking Coraffan's zen-inspired fish pond. The room is cooled with air-conditioning.

Bedroom 3

The third bedroom has a crow’s nest terrace, looks onto a private garden. The room is cooled with air-conditioning.

Bedroom 4

The fourth bedroom has a balcony with a 180-degree view of Canggu's rice fields and a crow's nest terrace overlooking the entire property as well as the surrounding terraced land. This bedroom features a spacious, garden-style bathroom. The room can be cooled with air-conditioning or ceiling fan.

Bedroom 5

The fifth bedroom features two single beds. This suite looks out on Coraffan's garden and a fishpond. The room is cooled with air-conditioning.

Living Room

Coraffan's open-air living room lets guests stretch out in fan-cooled shade near the pool. By sundown, the room comes into its own with warmly textured lighting and a bar that can help kick off the evening's activities.

Dining Room

The dining room, which can be as open to the elements as you wish, gives guests a dignified setting to complement our chef's culinary delights. Balconies off three sides of the dining room allow guests to congregate before and/or after each meal to sip cocktails and chat under the stars.

Media Room

Coraffan's TV room offers guests a cool and secluded break from the sunshine, appropriate for surfing the Internet, watching DVDs on our 42-inch plasma screen television or just stretching out with a novel. This room has a full bathroom, giving guests the option of turning it into a sixth bedroom, which our staff can do by setting up our two portable single beds.

Villa Coraffan is located close to exciting Seminyak.


3 Years Average rating based on  2  guest reviews:  4.3  /  5

Recent Reviews posted by Bali Luxury Villas's Guests:

 rented  Villa Casa Coraffan  

" LIFE IS A BOOK "
People say "Life is a book. Those who don't travel only read the first page". Villa Coraffan's Staff made us feel like the chapter is complete. Thank-you !

  Low Season High Season Peak Season
5 Bedrooms $850 / Night $975 / Night $999 / Night
Minimum Stay 2 nights 5 nights 7 nights

Above Rates are quoted in US Dollars per night and are subject to  5% tax & service charge. Rates are valid until 11 March, 2025 AM.

DatesSeasons
03 January, 202515 January, 2027Low Season
Air-conditioned Bedrooms
Contemporary Architecture & Design
Fully Equipped Kitchen
Parking
Safety Box
TV Satellite/Cable
Baby Cot & High Chair
Event / Wedding Venue
Media Entertainment Room
Private Swimming Pool
Stereo & DVD Player
Airport Transfer service - Conditions apply
Daily Breakfast
Food / Beverages shopping service based on cost of groceries
Fully staffed including private chef, villa attendants, gardeners, pool attendant, technician, security
Night security service
WIFI Internet
Welcome Refreshment & Fruit Basket
Villa Coraffan Floor Plan

(2.7 km) Villa Damai is an elegant modern 5-bedroom luxury villa tucked away in the leafy green village of Kuwum in Umalas, between Seminyak and Canggu. Newly completed Villa Damai, is built on 1800 square metres of land, with a private 22-metre lap swimming pool, set into a spacious lawn. It is surrounded by tropical gardens overlooking natural rice fields. This idyllic Bali villa offers its’ guests full-time professionally trained staff with private chef service, an ...

(0.9 km) Villa Paloma in Canggu, is a 5 bedroom luxury villa with spacious gardens, 800m from Bali's Pererenan Beach. Villa Paloma, a perfect wedding & event venue, can also host family & corporate retreats. Paloma is situated within a beautiful 2,800m2 lush, tropical estate by the riverside and rice fields.

(1.7 km) Nestled along the scenic bend of Pangi River in Canggu, Mata Air is a modern, high-end 5-bedroom villa with a spacious infinity pool, offering the perfect balance of seclusion and convenience. Villa Mata air is just north of Seminyak and near Echo Beach. This exclusive retreat, fully staffed with private chef, places you close to Bali’s best restaurants and nightlife while providing a serene escape.

Easy & convenient

The easiest way to make a booking is to contact us by email. We will reply to all requests within 24 hours. Alternatively a special chat facility is available on here during our office hours, either via our website, via skype or via telephone. We will respond to you as soon as possible within 24 hours during weekdays or the following Monday.

We accept payments by US Dollar Bank Transfers (TT) or
by Visa & MasterCard.

For villa-specific enquiries, see the "Rates & Terms" section of each villa. For general terms of the reservation procedure, you may look at our Reservations Procedure & Terms web-page.
Update Your Email and Personal Details
Update Visitor Numbers Details
 

30 minutes (10.7 km) drive to Seminyak Center, 30 minutes (11 km) drive to Seminyak Night Life, 45 minutes (18.6 km) drive to Bali's Ngurah Rai International Airport.

Restaurant
Horse Riding
Surf Beach
NightLife
Night Life
Family
Pura Petitenget
Tanah Lot Temple
Kuta Art Market
Javascript is required to view this map.